maytek-mimarlik

PARK VERA AVM Mimari Uygulama Projesi

Proje Adı
Park vera avm
Konum
ankara
TARİH
MAY 2023
SUNULAN HİZMET
mimari proje çizimi
PARK VERA AVM

Yönetmeliklere Uygun ve Modern Bir Tasarım

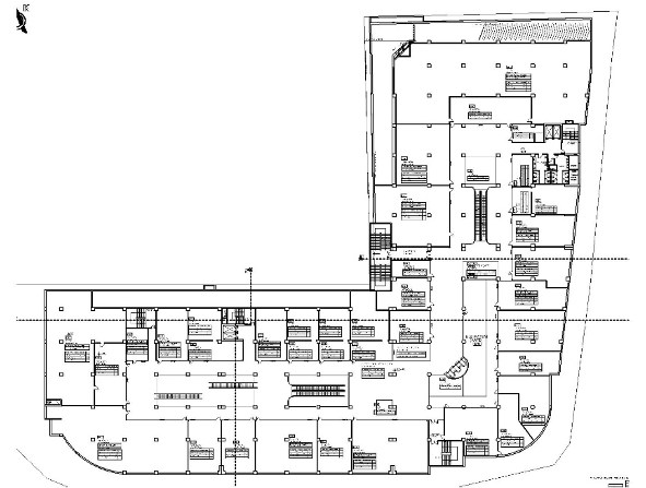
Maytek Mimarlık olarak, 72.000 m² büyüklüğünde bir alışveriş merkezi projesini başarılı bir şekilde hayata geçirmenin gururunu yaşıyoruz. Bu büyük ölçekli proje, yönetmeliklere uygun mimari tasarımlar, dış cephe uygulamaları, çevre düzenlemesi ve otopark tasarımı gibi birçok aşamayı içermektedir. Tüm süreçlerde uzmanlığımızı ve detaylara verdiğimiz önemi ortaya koyduk.

  • Proje Özeti

    • Toplam Alan: 72.000 m²
    • Hizmetler: Mimari proje tasarımı, belediye onaylarının alınması, şantiye kontrolleri, dış cephe tasarımı ve uygulanması, çevre ve otopark düzenlemeleri.
    • Amaç: Modern, yönetmeliklere uygun, estetik ve fonksiyonel bir alışveriş merkezi oluşturmak.

Yapılan Çalışmalar

1. Mimari Projelendirme ve Ruhsatlandırma

Alışveriş merkezinin mimari projeleri, imar yönetmeliklerine ve yerel düzenlemelere uygun şekilde hazırlanarak gerekli resmi onay süreçleri tamamlandı:

  • Mimari Proje Çizimi: 72.000 m²’lik alanın detaylı mimari tasarımı yapıldı.
  • Belediye Onayları: Ruhsatlandırma ve iskan izinleri için gerekli süreçler eksiksiz olarak yürütüldü.
  • Revizyon ve Uygulama Projeleri: Şantiye sürecinde ortaya çıkan ihtiyaçlar doğrultusunda projeler revize edilerek uygulamaya geçirildi.

2. Şantiye Kontrolleri

Projede, mimari kontrollerin yanı sıra elektrik, mekanik ve statik alanlarda da kısmen denetim hizmetleri sağlanmıştır:

  • Düzenli Şantiye Denetimleri: İşin tüm aşamalarında düzenli olarak sahada kontroller gerçekleştirilmiştir.
  • Sorunların Çözümü ve Revizyonlar: Uygulama sırasında ortaya çıkan değişiklik ihtiyaçlarına hızlı çözümler üretilmiştir.

3. Dış Cephe Tasarımı ve Uygulaması

Alışveriş merkezinin dış cephesi, estetik ve fonksiyonel gereklilikleri karşılayacak şekilde tasarlanmıştır:

  • Modern ve Çarpıcı Tasarım: Ziyaretçilerin dikkatini çeken, markanın prestijini artıran bir dış cephe oluşturulmuştur.
  • Malzeme Seçimi ve Uygulama: Kaliteli, çevre dostu ve dayanıklı malzemelerle dış cephe uygulaması gerçekleştirilmiştir.

4. Çevre ve Otopark Düzenlemesi

Proje kapsamında çevre düzenlemesi ve otopark tasarımı, kullanıcı konforunu ön planda tutacak şekilde ele alınmıştır:

  • Peyzaj Çalışmaları: Yeşil alanlar ve yürüyüş yolları gibi unsurlar ile ziyaretçilere keyifli bir dış mekan deneyimi sunulmuştur.
  • Otopark Alanları: Hem açık hem de kapalı otopark alanları tasarlanarak araç trafiğinin düzenlenmesi sağlanmıştır.

Projenin Katkıları ve Sonuçları

Bu alışveriş merkezi projesi, modern mimari ile işlevselliği birleştirerek bölgenin çehresini değiştiren bir yapıya dönüşmüştür. Projenin öne çıkan katkıları:

  1. Kullanıcı Deneyimi: Estetik ve fonksiyonel alanlar, ziyaretçiler için keyifli bir alışveriş deneyimi sağlamaktadır.
  2. Yerel Düzenlemelere Uygunluk: Proje, yönetmeliklere tamamen uygun şekilde tasarlanmış ve uygulanmıştır.
  3. Çevreye Duyarlılık: Çevre düzenlemesi ve sürdürülebilir malzeme kullanımı ile çevresel etkiler en aza indirilmiştir.
T.

TAMAMLANAN PROJELER